Start ingegneria © 2016

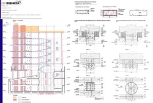
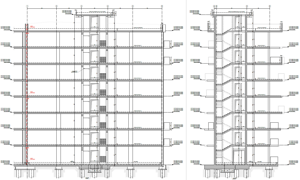
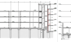
2023 - Structural and architectural retrofitting of an existing r.c. school building in Rome (Italy) .
2021 - Structural retrofitting of an existing r.c. building in Rome (Italy)
2024 - Structural design of a residential complex in Rome (Domus Ostiense)
2024 - Structural design of a residential complex in Rome (126 Martini)
2023 - in progress Structural design - New residential complex (Sicily - Italy)

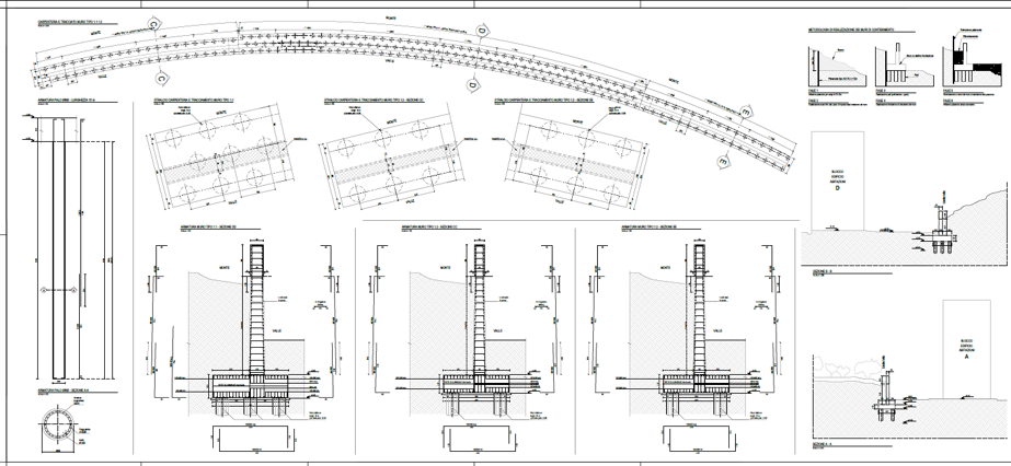
2023 - in progress Geotechnical and structural design - getechnical risk mitigation

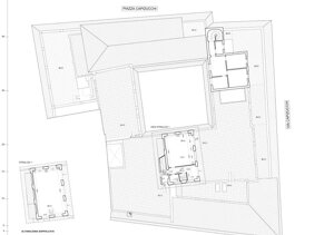
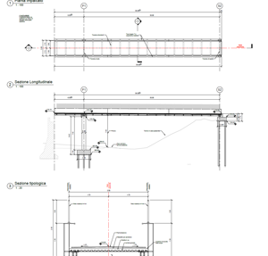
2023-2024: structural design of bridges and viaducts



BIM structural model
Città della Giustizia di Bari
BIM structural model
2023-2024 Structural design
2022 in progress - New theater in Cinecittà , Rome (Italy)






2022) Capogruppo in RTI per l'adeguamento sismico di 5 padiglioni dell'Ospedale San Camillo - Forlanini di Roma - Progettazione e Direzione Lavori Seismic retrofitting of 5 buildings of The San Camillo - Forlanini Hospital in Rome (Italy)

Final Structural designer in charge: Proger spa
Start ingegneria srl is developing (for Proger) the Structural design af the entire structures


2022) Refunctionalization of the ex paper factory of Tivoli (Italy) - retrofitting and new buildings
2022) Seismic assessment of coultural heritage - San Domenico Church in Collepardo (Frosinone, Italy), detailed and constructive design phase




2021) Structural design (all phases) of a commercial and residencial centre in NUR SULTAN (KAZAKHISTAN): commercial area, business tower (16 levels) and residencial tower (overall height 110m, 26 levels) - design in progress
2020) Structural design of a school building Gignano Sant'Elia inTorretta - L'Aquila (Italy)

2019) Structural design of a resort in Castiglione della Pescaglia - Lucca (Italy)
2017-2019) Structural design of a school building in Ariano Irpino - Av (Italy)
timber building with base isolation and r.c. understructure - Building under construction
2018-2019) Structural design (all phases) of the international airport of Tripoli (Lybia): under construction
2018-2019) Design of the seismic retrofitting for the Capizzucchi Palace (hystoric royal Palace) in Rome https://it.wikipedia.org/wiki/Capizucchi
2019) International Palace Hotel, Rome (Italy) - structural vulnerability assessment
2017) Residential building in Rome (Italy) - collaudo statico
2019) Private hospital in Rome (Italy) - collaudo statico
Tor Vergata Sport Citby Santiago Calatrava - Rome (Italy) - consultancy for structural analysis and r.c. design -
Afragola high speed train Station by Zaha Hadid (Italy) - consultancy for structural analysis and r.c. design -
Salerno Maritime Termininal by Zaha Hadid (Italy) - consultancy for structural analysis and r.c. design -
Sede del Consigli regionale della Puglia - Bari (Italy) - consultancy for structural analysis and r.c. design -
ENAV academy di Forlì (Italy) - consultancy for structural design of reinforced masonry structures and long span roof trusses
Start ingegneria © 2016